11/12/2025
Exciting Progress in Q4
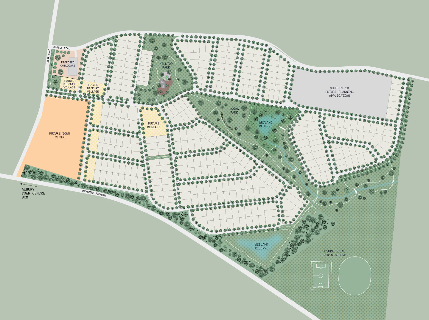
The community is coming to life!
As 2025 draws to a close, Hilltops is transforming before our eyes, with major milestones reached across the estate. We are thrilled to announce that Stage 1 is now complete, and Titles have been officially registered.
Settlements of our first lots are due to commence shortly, welcoming our first residents to the community Landscaping is now complete, featuring approximately 100 new trees and over 10,000 plants, bringing a fresh, vibrant atmosphere to the streets and open spaces.
Stage 8 is in its final weeks, with construction anticipated to finish by mid-December. All essential services are in place, including concrete footpaths, kerbs, road base, and retaining walls. The final asphalt and road line markings will complete the infrastructure, readying the stage for its future residents.

Meanwhile, Stages 2 and 3 are taking shape with significant earthworks, moving over 100,000 cubic metres of soil to form the base for 62 future homesites. Work has also begun on the wetland and sewer infrastructure, which will service large parts of the estate and support its long-term sustainability.

With streetscapes coming to life, infrastructure taking shape, and landscaping enhancing the community’s natural beauty, Hilltops is steadily evolving into the vibrant neighbourhood Birchmore envisioned.
Don’t miss your chance to be part of this thriving community – contact the Hilltops team today to secure your place and find out more about upcoming stages.